ようこそ ゲスト 様

宝塚市 賃貸店舗一部

宝塚市 賃貸店舗一部

お問い合わせ番号:f10021-72251
賃貸店舗一部
宝塚市大成町
阪急今津線 仁川駅 ( 徒歩 11分 )
賃料 20.00万円(税無)
(坪単価:0.97万円)
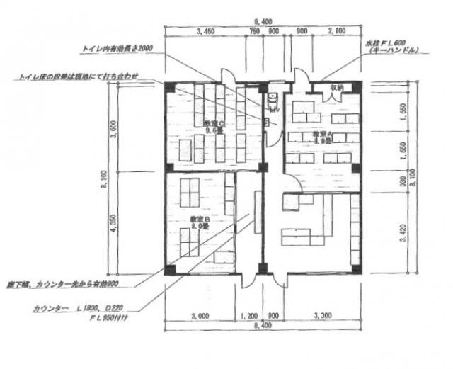
中津浜線沿いの路面店舗事務所
現況は学習塾営業中
内装残置予定
分割貸し相談可
業種要相談
管理費 -
保証金
解約引
-
-
敷金
礼金
20万円
30万円
建物/専有
面積
68.04m2
(20.58坪)
土地面積 - 築年月 1977年3月
(昭和52年3月)
駐車場 所在階 1階 地上階数
地下階数
3階
-
構造 鉄筋コンクリート造(RC)
用途地域 第一種住居地域
現況 賃貸中
入居/引渡 期日指定 
引渡年月 2026年07月上旬
取引 仲介
物件登録日 2026年4月7日
情報更新日 2026年4月17日
賃貸保証加入要

宝塚市 賃貸店舗一部 周辺地図

宝塚市 賃貸店舗一部 のことならお気軽にご相談ください。
レジェンドビルマネジメント
TEL:06-4950-4055
営業時間:10:00-18:30
定休日 :日曜・祝日
メールでのお問い合わせ

お電話の場合は「テナントショップを見ました。物件番号は < f10021-72251 > です」と伝えていただくとスムーズにお応えできます。

  • 借りる
  • テナント・貸店舗を探す
  • オフィス・事務所を探す
  • 倉庫・工場を探す
  • 貸土地・借地を探す
  • 居抜き物件
  • 地域で探す
  • 買う
  • 売買物件を探す
「居抜き」のまま閉店で閉店費用を大幅削減
非公開物件情報
一般公開物件
1,012
会員用非公開物件
79
  • ログイン
  • 新規登録
  • 依頼する
  • 新着物件!未公開物件!地元に詳しい!
  • 物件リクエスト
検索する
スペース区切りの複合語句検索はできません

  • スマホで物件検索
  • 実績紹介
  • 物件管理
  • 会社概要・アクセス
  • 採用情報
  • LBMブログ
  • コーポレートサイト