ようこそ ゲスト 様

京都市下京区 賃貸店舗・事務所

京都市下京区 賃貸店舗・事務所

お問い合わせ番号:f10021-72001
賃貸店舗・事務所
京都市下京区永原町
地下鉄烏丸線 四条駅 ( 徒歩 3分 )
賃料 28.00万円(税別)
(坪単価:1.77万円)
烏丸・京都河原町エリアの好立地
四条駅12番出口徒歩3分、アクセス抜群のテナントビル。
内装完備!WC,洗面室、シャワー室付間仕切り(スライドドア)有、カーテン付
管理費
共益費
-
30,000万円(税別)
保証金
解約引
-
-
敷金
礼金
更新料
18万円
100万円(税別)
30,000円(税別)
建物/専有
面積
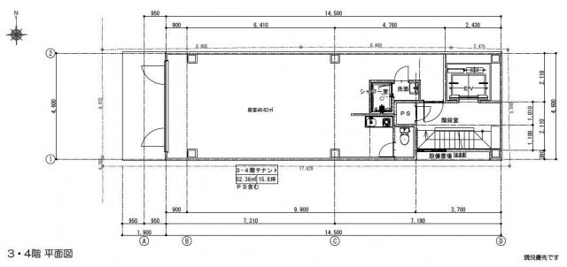
52.36m2
(15.83坪)
土地面積 - 築年月 2021年1月
(令和3年1月)
駐車場 所在階 3階 地上階数
地下階数
5階
-
構造 鉄骨造
用途地域 商業地域
現況 空き
入居/引渡 即時 
取引 仲介
物件登録日 2026年1月19日
情報更新日 2026年1月19日
医科・歯科・クリニック・薬局・重軽飲食物販・事務所・ネイル・エステサロン・ジム・美容室等
エレベーター、共用部防犯カメラ
更新料無し(3年毎更新事務手数料要 33,000円内消費税3,000円)
保証会社加入要、火災保険加入要
京都市下京区 賃貸店舗・事務所 のことならお気軽にご相談ください。
レジェンドビルマネジメント
TEL:06-4950-4055
営業時間:10:00-18:30
定休日 :日曜・祝日
メールでのお問い合わせ

お電話の場合は「テナントショップを見ました。物件番号は < f10021-72001 > です」と伝えていただくとスムーズにお応えできます。

  • 借りる
  • テナント・貸店舗を探す
  • オフィス・事務所を探す
  • 倉庫・工場を探す
  • 貸土地・借地を探す
  • 居抜き物件
  • 地域で探す
  • 買う
  • 売買物件を探す
「居抜き」のまま閉店で閉店費用を大幅削減
非公開物件情報
一般公開物件
1,158
会員用非公開物件
94
  • ログイン
  • 新規登録
  • 依頼する
  • 新着物件!未公開物件!地元に詳しい!
  • 物件リクエスト
検索する
スペース区切りの複合語句検索はできません

  • スマホで物件検索
  • 実績紹介
  • 物件管理
  • 会社概要・アクセス
  • 採用情報
  • LBMブログ
  • コーポレートサイト