ようこそ ゲスト 様

京都市左京区 賃貸店舗一部

京都市左京区 賃貸店舗一部

お問い合わせ番号:f10021-71961
賃貸店舗一部
京都市左京区修学院大林町
叡山電鉄 修学院駅 ( 徒歩 4分 )
賃料 38.00万円(税別)
(坪単価:0.79万円)
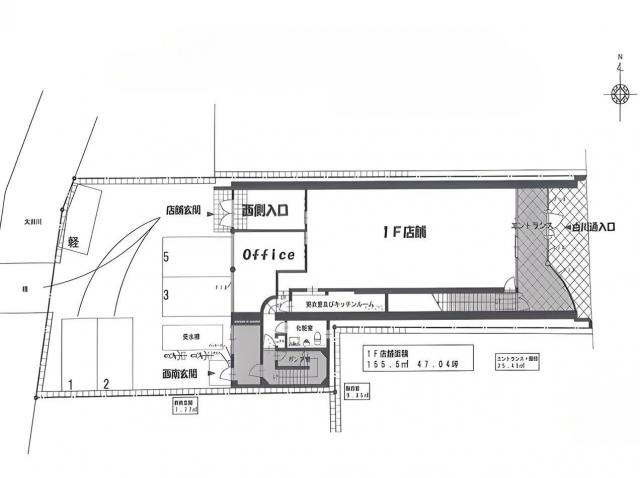
視認性抜群のスタイリッシュビル1階テナント
白川通りと西側道路の角地に位置する、視認性とアクセス性に優れたおしゃれな3階建てビルの1階部分。現在はオーガニックプラザ営業中で、内装も大変美麗に保たれています。
■ 多用途に対応可能
クリニック・診療所、福祉関連施設、営業所、事務所、塾、ショールーム、各種教室など、幅広い業種に適したフレキシブルな空間です。
管理費 12,000円(税別)
保証金
解約引
120万円
-
敷金
礼金
更新料
-
1(税別)
1ヶ月(税別)
建物/専有
面積
160.00m2
(48.4坪)
土地面積 407.70m2
(123.32坪)
築年月 1988年1月
(昭和63年1月)
駐車場 空有/3台
(10,000円(税別))
所在階 1階 地上階数
地下階数
3階
-
構造 鉄筋コンクリート造(RC)
用途地域 第二種低層住居専用地域
現況 空き
入居/引渡 即時 
取引 仲介
物件登録日 2026年1月10日
情報更新日 2026年1月10日
照明器具及び空調設備他設備に関しては全て残置物とする(設備機器全てのメンテは借主にて)30年に大規模修繕完了、西側道路からの西玄関有
現在のガラス面撤去の予定・・店舗前に、お客様用の2~3台駐車可の予定
3年毎更新
火災保険・保証会社加入要

京都市左京区 賃貸店舗一部 周辺地図

京都市左京区 賃貸店舗一部 のことならお気軽にご相談ください。
レジェンドビルマネジメント
TEL:06-4950-4055
営業時間:10:00-18:30
定休日 :日曜・祝日
メールでのお問い合わせ

お電話の場合は「テナントショップを見ました。物件番号は < f10021-71961 > です」と伝えていただくとスムーズにお応えできます。

  • 借りる
  • テナント・貸店舗を探す
  • オフィス・事務所を探す
  • 倉庫・工場を探す
  • 貸土地・借地を探す
  • 居抜き物件
  • 地域で探す
  • 買う
  • 売買物件を探す
「居抜き」のまま閉店で閉店費用を大幅削減
非公開物件情報
一般公開物件
1,158
会員用非公開物件
94
  • ログイン
  • 新規登録
  • 依頼する
  • 新着物件!未公開物件!地元に詳しい!
  • 物件リクエスト
検索する
スペース区切りの複合語句検索はできません

  • スマホで物件検索
  • 実績紹介
  • 物件管理
  • 会社概要・アクセス
  • 採用情報
  • LBMブログ
  • コーポレートサイト