ようこそ ゲスト 様

京都市中京区 賃貸店舗・事務所

京都市中京区 賃貸店舗・事務所

お問い合わせ番号:f10021-71950
賃貸店舗・事務所
京都市中京区堺町通夷川上る絹屋町
地下鉄烏丸線 丸太町駅 ( 徒歩 5分 )
賃料 50.00万円
(坪単価:1.37万円)
地下鉄烏丸線丸太町駅徒歩5分
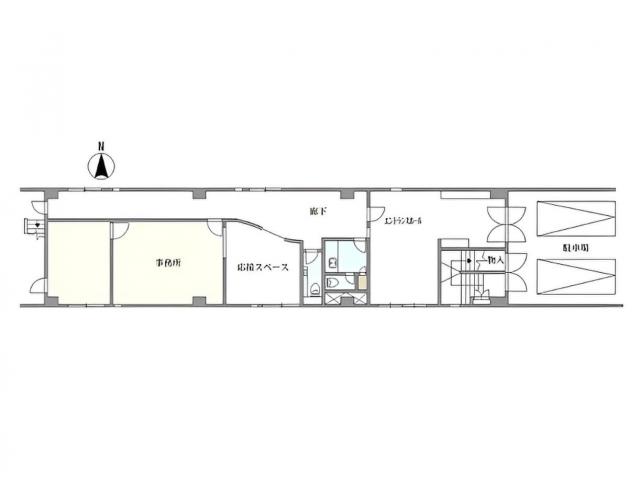
1階の事業用賃貸
前面の平面ガレージ利用可能
上下水道 洗浄機能付き便座 化粧洗面台各部屋個別空調 1階オートロック各オフィス扉鍵付き 
看板設置要相談
管理費 -
保証金
解約引
3ヶ月
-
敷金
礼金
更新料
-
2ヶ月
1ヶ月
建物/専有
面積
120.45m2
(36.43坪)
土地面積 - 築年月 1991年6月
(平成3年6月)
駐車場 有/2台
(35,000円)
所在階 1階 地上階数
地下階数
3階
-
構造 鉄筋コンクリート造(RC)
現況 空き
入居/引渡 相談 
契約期間 5年
取引 仲介
物件登録日 2026年1月8日
情報更新日 2026年1月16日
初回契約書類代11,000円(税込)要
解約:書面にて6ヶ月前
電気・水道代は使用料検針による実質負担
1年未満解約…違約金家賃1ヶ月分
ガレージ料金35,000円
喫煙不可。法人契約希望。
火災保険・保証会社加入要

京都市中京区 賃貸店舗・事務所 周辺地図

京都市中京区 賃貸店舗・事務所 のことならお気軽にご相談ください。
レジェンドビルマネジメント
TEL:06-4950-4055
営業時間:10:00-18:30
定休日 :日曜・祝日
メールでのお問い合わせ

お電話の場合は「テナントショップを見ました。物件番号は < f10021-71950 > です」と伝えていただくとスムーズにお応えできます。

  • 借りる
  • テナント・貸店舗を探す
  • オフィス・事務所を探す
  • 倉庫・工場を探す
  • 貸土地・借地を探す
  • 居抜き物件
  • 地域で探す
  • 買う
  • 売買物件を探す
「居抜き」のまま閉店で閉店費用を大幅削減
非公開物件情報
一般公開物件
1,158
会員用非公開物件
94
  • ログイン
  • 新規登録
  • 依頼する
  • 新着物件!未公開物件!地元に詳しい!
  • 物件リクエスト
検索する
スペース区切りの複合語句検索はできません

  • スマホで物件検索
  • 実績紹介
  • 物件管理
  • 会社概要・アクセス
  • 採用情報
  • LBMブログ
  • コーポレートサイト