ようこそ ゲスト 様

京都市左京区 賃貸店舗戸建

京都市左京区 賃貸店舗戸建

お問い合わせ番号:f10021-71891
賃貸店舗戸建
京都市左京区岡崎円勝寺町
地下鉄東西線 東山駅 ( 徒歩 9分 )
賃料 180.00万円(税別)
(坪単価:0.80万円)
地下鉄東西線東山駅より徒歩9分。
平安神宮・岡崎公園・京都市美術館など、京都を代表する文化・観光拠点が集積する岡崎エリアに位置する、希少な1棟貸しテナントです。
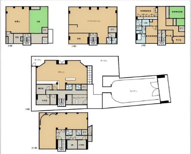
延床面積は約740㎡(約224坪)、RC造・地上4階建+地下1階の大型物件で、宴会場としての使用実績があり、飲食店をはじめ、スタジオ・ホール、スクール、クリニック、物販など幅広い業種に対応可能(業種応相談)。
管理費 -
保証金
解約引
3ヶ月
-
敷金
礼金
-
1ヶ月(税別)
建物/専有
面積
740.41m2
(223.97坪)
土地面積 - 築年月 1973年5月
(昭和48年5月)
駐車場 所在階 1-4階 地上階数
地下階数
4階
1階
構造 鉄筋コンクリート造(RC)
用途地域 第二種住居地域
現況 空き
入居/引渡 相談 
契約期間 10年
取引 仲介
物件登録日 2025年12月13日
情報更新日 2025年12月13日
エレベーター・都市ガス・空調・トイレ完備。
引渡し状態についてはご相談可能で、用途や業態に合わせた柔軟な計画が可能です。
※写真は現テナント退去前のものです

京都市左京区 賃貸店舗戸建 周辺地図

京都市左京区 賃貸店舗戸建 のことならお気軽にご相談ください。
レジェンドビルマネジメント
TEL:06-4950-4055
営業時間:10:00-18:30
定休日 :日曜・祝日
メールでのお問い合わせ

お電話の場合は「テナントショップを見ました。物件番号は < f10021-71891 > です」と伝えていただくとスムーズにお応えできます。

  • 借りる
  • テナント・貸店舗を探す
  • オフィス・事務所を探す
  • 倉庫・工場を探す
  • 貸土地・借地を探す
  • 居抜き物件
  • 地域で探す
  • 買う
  • 売買物件を探す
「居抜き」のまま閉店で閉店費用を大幅削減
非公開物件情報
一般公開物件
1,158
会員用非公開物件
94
  • ログイン
  • 新規登録
  • 依頼する
  • 新着物件!未公開物件!地元に詳しい!
  • 物件リクエスト
検索する
スペース区切りの複合語句検索はできません

  • スマホで物件検索
  • 実績紹介
  • 物件管理
  • 会社概要・アクセス
  • 採用情報
  • LBMブログ
  • コーポレートサイト