ようこそ ゲスト 様

京都市東山区 賃貸店舗一部

京都市東山区 賃貸店舗一部

お問い合わせ番号:f10021-71877
賃貸店舗一部
京都市東山区八坂新地清本町
京阪本線 祇園四条駅 ( 徒歩 5分 )
賃料 55.00万円(税別)
(坪単価:7.05万円)
京都・祇園の風情漂う花見小路に面した、1階店舗
元ラーメン屋跡のスケルトン渡し予定
弊社仲介の都たこやきさんのお隣です。
周辺は観光客や地元客で賑わい、集客力も抜群。
花見小路という立地の希少性をお見逃しなく!
管理費
共益費
-
15,000円(税別)
保証金
解約引
181.5万円
-
敷金
礼金
-
00円
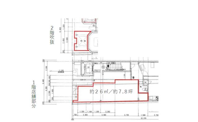
建物/専有
面積
25.79m2
(7.8坪)
土地面積 - 築年月 1973年
(昭和48年)
駐車場 所在階 1階 地上階数
地下階数
6階
-
構造 鉄筋コンクリート造(RC)
現況 空き
入居/引渡 相談 
契約期間 10年
取引 仲介
物件登録日 2025年12月9日
情報更新日 2025年12月12日
敷金償却は年数スライド式
定期建物10年契約
火災保険・保証会社加入要
京都市東山区 賃貸店舗一部 のことならお気軽にご相談ください。
レジェンドビルマネジメント
TEL:06-4950-4055
営業時間:10:00-18:30
定休日 :日曜・祝日
メールでのお問い合わせ

お電話の場合は「テナントショップを見ました。物件番号は < f10021-71877 > です」と伝えていただくとスムーズにお応えできます。

  • 借りる
  • テナント・貸店舗を探す
  • オフィス・事務所を探す
  • 倉庫・工場を探す
  • 貸土地・借地を探す
  • 居抜き物件
  • 地域で探す
  • 買う
  • 売買物件を探す
「居抜き」のまま閉店で閉店費用を大幅削減
非公開物件情報
一般公開物件
1,181
会員用非公開物件
93
  • ログイン
  • 新規登録
  • 依頼する
  • 新着物件!未公開物件!地元に詳しい!
  • 物件リクエスト
検索する
スペース区切りの複合語句検索はできません

  • スマホで物件検索
  • 実績紹介
  • 物件管理
  • 会社概要・アクセス
  • 採用情報
  • LBMブログ
  • コーポレートサイト