ようこそ ゲスト 様

尼崎市 賃ビル

尼崎市 賃ビル

お問い合わせ番号:f10021-71853
賃ビル
尼崎市東園田町9
阪急神戸線 園田駅 ( 徒歩 2分 )
賃料 400.00万円(税別)
(坪単価:1.34万円)
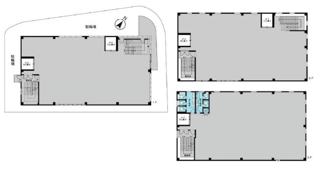
阪急園田駅前の一棟貸し店舗事務所
銀行退去跡
原状回復工事中  スケルトン渡し
各階 330㎡
業種要相談
エレベーター有り
管理費 -
保証金
解約引
-
-
敷金
礼金
3ヶ月
1ヶ月(税別)
建物/専有
面積
990.00m2
(299.47坪)
土地面積 - 築年月 2012年6月
(平成24年6月)
駐車場 - 所在階 1-3階 地上階数
地下階数
3階
-
構造 鉄骨造
用途地域 近隣商業地域
現況 空き
入居/引渡 期日指定 
引渡年月 2026年01月上旬
取引 仲介
物件登録日 2025年12月5日
情報更新日 2025年12月5日
賃貸保証加入要

尼崎市 賃ビル 周辺地図

尼崎市 賃ビル のことならお気軽にご相談ください。
レジェンドビルマネジメント
TEL:06-4950-4055
営業時間:10:00-18:30
定休日 :日曜・祝日
メールでのお問い合わせ

お電話の場合は「テナントショップを見ました。物件番号は < f10021-71853 > です」と伝えていただくとスムーズにお応えできます。

  • 借りる
  • テナント・貸店舗を探す
  • オフィス・事務所を探す
  • 倉庫・工場を探す
  • 貸土地・借地を探す
  • 居抜き物件
  • 地域で探す
  • 買う
  • 売買物件を探す
「居抜き」のまま閉店で閉店費用を大幅削減
非公開物件情報
一般公開物件
1,189
会員用非公開物件
90
  • ログイン
  • 新規登録
  • 依頼する
  • 新着物件!未公開物件!地元に詳しい!
  • 物件リクエスト
検索する
スペース区切りの複合語句検索はできません

  • スマホで物件検索
  • 実績紹介
  • 物件管理
  • 会社概要・アクセス
  • 採用情報
  • LBMブログ
  • コーポレートサイト