ようこそ ゲスト 様

京都市中京区 賃貸店舗一部

京都市中京区 賃貸店舗一部

お問い合わせ番号:f10021-71822
賃貸店舗一部
京都市中京区六角通柳馬場東入大黒町
阪急京都線 烏丸駅 ( 徒歩 6分 )
賃料 29.49万円(税別)
(坪単価:1.40万円)
烏丸通、柳馬場通、六角通に囲まれたエリア。
京都らしい街並みと和の風情が漂う商業立地です。
サービス店舗相談、重飲食不可、軽飲食相談
スケルトン渡し・エスカレーターあり
2026年1月引渡し
管理費 -
保証金
解約引
-
-
敷金
礼金
更新料
10ヶ月
1ヶ月(税別)
1円(税別)
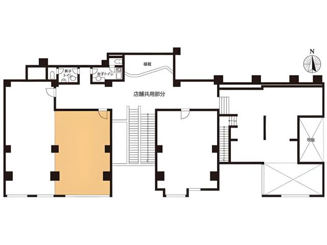
建物/専有
面積
69.68m2
(21.07坪)
土地面積 - 築年月 2009年3月
(平成21年3月)
駐車場 所在階 2階 地上階数
地下階数
10階
-
構造 鉄筋コンクリート造(RC)
現況 居住中
入居/引渡 空予定 
引渡年月 2026上旬
取引 仲介
物件登録日 2025年11月29日
情報更新日 2025年12月12日
※商談解除
営業時間6:00~22:30
共用部にトイレ有り
天井高:4750mm
火災保険・保証会社加入要
京都市中京区 賃貸店舗一部 のことならお気軽にご相談ください。
レジェンドビルマネジメント
TEL:06-4950-4055
営業時間:10:00-18:30
定休日 :日曜・祝日
メールでのお問い合わせ

お電話の場合は「テナントショップを見ました。物件番号は < f10021-71822 > です」と伝えていただくとスムーズにお応えできます。

  • 借りる
  • テナント・貸店舗を探す
  • オフィス・事務所を探す
  • 倉庫・工場を探す
  • 貸土地・借地を探す
  • 居抜き物件
  • 地域で探す
  • 買う
  • 売買物件を探す
「居抜き」のまま閉店で閉店費用を大幅削減
非公開物件情報
一般公開物件
1,116
会員用非公開物件
95
  • ログイン
  • 新規登録
  • 依頼する
  • 新着物件!未公開物件!地元に詳しい!
  • 物件リクエスト
検索する
スペース区切りの複合語句検索はできません

  • スマホで物件検索
  • 実績紹介
  • 物件管理
  • 会社概要・アクセス
  • 採用情報
  • LBMブログ
  • コーポレートサイト