ようこそ ゲスト 様

京都市上京区 賃貸店舗戸建

京都市上京区 賃貸店舗戸建

お問い合わせ番号:f10021-71766
賃貸店舗戸建
京都市上京区東堅町
京福北野線 北野白梅町駅 ( 徒歩 10分 )
賃料 30.00万円(税別)
(坪単価:0.62万円)
北野天満宮より徒歩3分
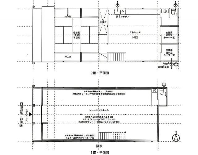
フィットネスジムの居抜物件
業種相談 造作無償
シャワールーム2か所・トイレ2か所
管理費 -
保証金
解約引
3ヶ月
2ヶ月(税込)
敷金
礼金
更新料
-
1ヶ月(税別)
1ヶ月(税別)
建物/専有
面積
160.00m2
(48.4坪)
土地面積 - 築年月 不詳
駐車場 所在階 1-2階 地上階数
地下階数
1階
2階
構造 木造
用途地域 商業地域
現況 空き
入居/引渡 即時 
契約期間 3年
取引 仲介
物件登録日 2025年11月19日
情報更新日 2025年11月19日
火災保険・保証会社加入要

京都市上京区 賃貸店舗戸建の特徴・設備


京都市上京区 賃貸店舗戸建 のことならお気軽にご相談ください。
レジェンドビルマネジメント
TEL:06-4950-4055
営業時間:10:00-18:30
定休日 :日曜・祝日
メールでのお問い合わせ

お電話の場合は「テナントショップを見ました。物件番号は < f10021-71766 > です」と伝えていただくとスムーズにお応えできます。

  • 借りる
  • テナント・貸店舗を探す
  • オフィス・事務所を探す
  • 倉庫・工場を探す
  • 貸土地・借地を探す
  • 居抜き物件
  • 地域で探す
  • 買う
  • 売買物件を探す
「居抜き」のまま閉店で閉店費用を大幅削減
非公開物件情報
一般公開物件
1,189
会員用非公開物件
90
  • ログイン
  • 新規登録
  • 依頼する
  • 新着物件!未公開物件!地元に詳しい!
  • 物件リクエスト
検索する
スペース区切りの複合語句検索はできません

  • スマホで物件検索
  • 実績紹介
  • 物件管理
  • 会社概要・アクセス
  • 採用情報
  • LBMブログ
  • コーポレートサイト