ようこそ ゲスト 様

大阪市中央区 賃貸店舗一部

大阪市中央区 賃貸店舗一部

お問い合わせ番号:f10021-71675
賃貸店舗一部
大阪市中央区南本町1
大阪メトロ堺筋【堺筋本町】駅 ( 徒歩 2分 )
賃料 24.50万円(税込)
(坪単価:1.34万円)
堺筋本町駅より徒歩2分の好立地
飲食店可能
看板も設置可能です
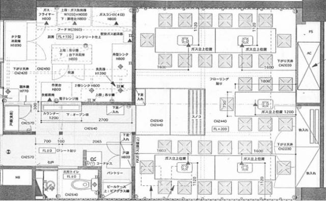
居酒屋の居抜き店舗
造作すべて無償(残置物扱い)
即営業可能♪
管理費 10,000円(税込)
保証金
解約引
80万円
40万円(税込)
敷金
礼金
-
1ヶ月(税込)
建物/専有
面積
60.57m2
(18.32坪)
土地面積 - 築年月 1980年7月
(昭和55年7月)
駐車場 所在階 B1階 地上階数
地下階数
14階
1階
構造 鉄骨鉄筋コンクリート造(SRC)
現況 賃貸中
入居/引渡 相談 
取引 仲介
物件登録日 2025年11月4日
情報更新日 2025年11月4日
保証会社・火災保険加入要

大阪市中央区 賃貸店舗一部の特徴・設備


大阪市中央区 賃貸店舗一部 周辺地図

大阪市中央区 賃貸店舗一部 のことならお気軽にご相談ください。
レジェンドビルマネジメント
TEL:06-4950-4055
営業時間:10:00-18:30
定休日 :日曜・祝日
メールでのお問い合わせ

お電話の場合は「テナントショップを見ました。物件番号は < f10021-71675 > です」と伝えていただくとスムーズにお応えできます。

  • 借りる
  • テナント・貸店舗を探す
  • オフィス・事務所を探す
  • 倉庫・工場を探す
  • 貸土地・借地を探す
  • 居抜き物件
  • 地域で探す
  • 買う
  • 売買物件を探す
「居抜き」のまま閉店で閉店費用を大幅削減
非公開物件情報
一般公開物件
1,172
会員用非公開物件
95
  • ログイン
  • 新規登録
  • 依頼する
  • 新着物件!未公開物件!地元に詳しい!
  • 物件リクエスト
検索する
スペース区切りの複合語句検索はできません

  • スマホで物件検索
  • 実績紹介
  • 物件管理
  • 会社概要・アクセス
  • 採用情報
  • LBMブログ
  • コーポレートサイト