ようこそ ゲスト 様

尼崎市 賃倉庫付き事務所

尼崎市 賃倉庫付き事務所

お問い合わせ番号:f10021-71594
賃倉庫付き事務所
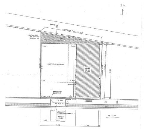
尼崎市道意町5
阪神本線 尼崎センタープール前駅 ( 徒歩 6分 )
賃料 80.00万円(税込)
(坪単価:0.78万円)
国道43号線側道沿いの倉庫事務所
運送会社退去予定
駐車スペース有り
管理費 -
保証金
解約引
100万円
-
敷金
礼金
-
80万円(税込)
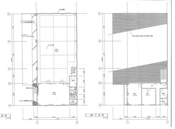
建物/専有
面積
341.00m2
(103.15坪)
土地面積 835.72m2
(252.8坪)
築年月 不詳
駐車場 所在階 1-2階 地上階数
地下階数
2階
-
構造 鉄骨造
用途地域 準住居地域
現況 賃貸中
入居/引渡 相談 
取引 仲介
物件登録日 2025年10月20日
情報更新日 2025年10月20日
賃貸保証加入要

尼崎市 賃倉庫付き事務所 周辺地図

尼崎市 賃倉庫付き事務所 のことならお気軽にご相談ください。
レジェンドビルマネジメント
TEL:06-4950-4055
営業時間:10:00-18:30
定休日 :日曜・祝日
メールでのお問い合わせ

お電話の場合は「テナントショップを見ました。物件番号は < f10021-71594 > です」と伝えていただくとスムーズにお応えできます。

  • 借りる
  • テナント・貸店舗を探す
  • オフィス・事務所を探す
  • 倉庫・工場を探す
  • 貸土地・借地を探す
  • 居抜き物件
  • 地域で探す
  • 買う
  • 売買物件を探す
「居抜き」のまま閉店で閉店費用を大幅削減
非公開物件情報
一般公開物件
1,120
会員用非公開物件
73
  • ログイン
  • 新規登録
  • 依頼する
  • 新着物件!未公開物件!地元に詳しい!
  • 物件リクエスト
検索する
スペース区切りの複合語句検索はできません

  • スマホで物件検索
  • 実績紹介
  • 物件管理
  • 会社概要・アクセス
  • 採用情報
  • LBMブログ
  • コーポレートサイト