ようこそ ゲスト 様

西宮市 賃貸店舗・事務所

西宮市 賃貸店舗・事務所

お問い合わせ番号:f10021-71576
賃貸店舗・事務所
西宮市弓場町
阪神本線 香櫨園駅 ( 徒歩 10分 )
賃料 12.00万円(税別)
(坪単価:0.88万円)
国道2号線沿いの角地のテナントビル
前テナント ジムの内装残置有り
デザイナーズ築浅店舗
スケルトン渡し相談可
エステ・美容系業種にオススメ
業種要相談(重飲食不可)
管理費 -
保証金
解約引
-
-
敷金
礼金
-
2ヶ月(税別)
建物/専有
面積
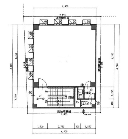
45.00m2
(13.61坪)
土地面積 - 築年月 2014年11月
(平成26年11月)
駐車場 所在階 4階 地上階数
地下階数
4階
-
構造 鉄骨造
用途地域 近隣商業地域
現況 空き
入居/引渡 相談 
取引 仲介
物件登録日 2025年10月15日
情報更新日 2025年11月26日
賃貸保証加入要

西宮市 賃貸店舗・事務所 周辺地図

西宮市 賃貸店舗・事務所 のことならお気軽にご相談ください。
レジェンドビルマネジメント
TEL:06-4950-4055
営業時間:10:00-18:30
定休日 :日曜・祝日
メールでのお問い合わせ

お電話の場合は「テナントショップを見ました。物件番号は < f10021-71576 > です」と伝えていただくとスムーズにお応えできます。

  • 借りる
  • テナント・貸店舗を探す
  • オフィス・事務所を探す
  • 倉庫・工場を探す
  • 貸土地・借地を探す
  • 居抜き物件
  • 地域で探す
  • 買う
  • 売買物件を探す
「居抜き」のまま閉店で閉店費用を大幅削減
非公開物件情報
一般公開物件
1,189
会員用非公開物件
90
  • ログイン
  • 新規登録
  • 依頼する
  • 新着物件!未公開物件!地元に詳しい!
  • 物件リクエスト
検索する
スペース区切りの複合語句検索はできません

  • スマホで物件検索
  • 実績紹介
  • 物件管理
  • 会社概要・アクセス
  • 採用情報
  • LBMブログ
  • コーポレートサイト