ようこそ ゲスト 様

京都市左京区 賃貸店舗一部

京都市左京区 賃貸店舗一部

お問い合わせ番号:f10021-71517
賃貸店舗一部
京都市左京区田中里ノ内町
叡山電鉄本線 元田中駅 ( 徒歩 1分 )
賃料 130.00万円(税別)
(坪単価:0.86万円)
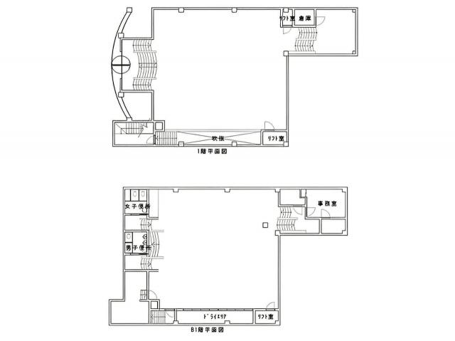
東大路通りに面す・地下1階・1階の一括店舗
京都市内メイン通り東大路通に面し、元田中駅から徒歩1分の好立地。
視認性・アクセスともに抜群で、飲食・物販・サービス店舗など幅広く対応可能。
地下1階から1階までの一括利用で、重飲食も相談可能な希少物件です。
駐輪所約36坪も含む
管理費 -
保証金
解約引
10ヶ月
-
敷金
礼金
更新料
-
-
2ヶ月(税別)
建物/専有
面積
499.03m2
(150.95坪)
土地面積 - 築年月 2021年1月
(令和3年1月)
駐車場 所在階 B1-1階 地上階数
地下階数
3階
1階
構造 鉄骨造
現況 空き
入居/引渡 相談 
契約期間 5年
取引 仲介
物件登録日 2025年10月7日
情報更新日 2025年10月8日
キュービクル・汲上ポンプ・エアコン残置物
シャッター故障しています。
現状渡し・解約引き年数スライド式
火災保険・保証会社加入要

京都市左京区 賃貸店舗一部 周辺地図

京都市左京区 賃貸店舗一部 のことならお気軽にご相談ください。
レジェンドビルマネジメント
TEL:06-4950-4055
営業時間:10:00-18:30
定休日 :日曜・祝日
メールでのお問い合わせ

お電話の場合は「テナントショップを見ました。物件番号は < f10021-71517 > です」と伝えていただくとスムーズにお応えできます。

  • 借りる
  • テナント・貸店舗を探す
  • オフィス・事務所を探す
  • 倉庫・工場を探す
  • 貸土地・借地を探す
  • 居抜き物件
  • 地域で探す
  • 買う
  • 売買物件を探す
「居抜き」のまま閉店で閉店費用を大幅削減
非公開物件情報
一般公開物件
1,210
会員用非公開物件
91
  • ログイン
  • 新規登録
  • 依頼する
  • 新着物件!未公開物件!地元に詳しい!
  • 物件リクエスト
検索する
スペース区切りの複合語句検索はできません

  • スマホで物件検索
  • 実績紹介
  • 物件管理
  • 会社概要・アクセス
  • 採用情報
  • LBMブログ
  • コーポレートサイト