ようこそ ゲスト 様

大阪市福島区 賃貸店舗一部

大阪市福島区 賃貸店舗一部

お問い合わせ番号:f10021-71491
賃貸店舗一部
大阪市福島区吉野2
大阪メトロ千日前線【玉川】駅 ( 徒歩 2分 )
賃料 23.00万円(税別)
(坪単価:1.60万円)
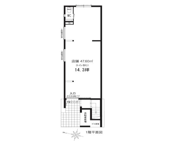
11月竣工予定の新築テナントビル
1階ワンフロア貸し
飲食店相談可能
4路線利用可能な好立地
素地仕上げ・素地渡し
自動ドアシャッター付
看板設置可能(5500円別途)
管理費
共益費
-
5,000円(税別)
保証金
解約引
-
-
敷金
礼金
69円
46万円(税別)
建物/専有
面積
47.60m2
(14.39坪)
土地面積 - 築年月 2025年11月
(令和7年11月)
駐車場 所在階 1階 地上階数
地下階数
3階
-
構造 鉄骨造
現況 建築中
入居/引渡 建設中 
引渡年月 2025年12月上旬
契約期間 2年
取引 仲介
物件登録日 2025年10月4日
情報更新日 2025年10月4日
保証会社・火災保険加入要

大阪市福島区 賃貸店舗一部 周辺地図

大阪市福島区 賃貸店舗一部 のことならお気軽にご相談ください。
レジェンドビルマネジメント
TEL:06-4950-4055
営業時間:10:00-18:30
定休日 :日曜・祝日
メールでのお問い合わせ

お電話の場合は「テナントショップを見ました。物件番号は < f10021-71491 > です」と伝えていただくとスムーズにお応えできます。

  • 借りる
  • テナント・貸店舗を探す
  • オフィス・事務所を探す
  • 倉庫・工場を探す
  • 貸土地・借地を探す
  • 居抜き物件
  • 地域で探す
  • 買う
  • 売買物件を探す
「居抜き」のまま閉店で閉店費用を大幅削減
非公開物件情報
一般公開物件
1,213
会員用非公開物件
90
  • ログイン
  • 新規登録
  • 依頼する
  • 新着物件!未公開物件!地元に詳しい!
  • 物件リクエスト
検索する
スペース区切りの複合語句検索はできません

  • スマホで物件検索
  • 実績紹介
  • 物件管理
  • 会社概要・アクセス
  • 採用情報
  • LBMブログ
  • コーポレートサイト