ようこそ ゲスト 様

京都市伏見区 賃貸店舗一部

京都市伏見区 賃貸店舗一部

お問い合わせ番号:f10021-71484
賃貸店舗一部
京都市伏見区深草一ノ坪町
京阪本線 伏見稲荷駅 ( 徒歩 1分 )
賃料 30.00万円~(税別)
(坪単価:4.83万円)
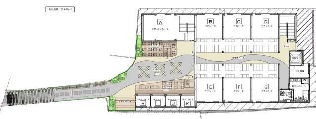
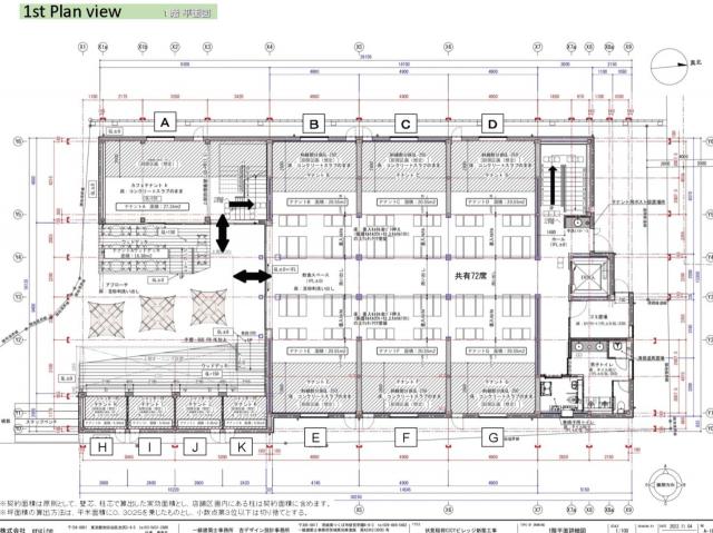
京都・伏見稲荷大社のすぐそば、京阪伏見稲荷駅徒歩1分の好立地に2023年9月オープンした伏見稲荷OICYビレッジは、食とおみやげの世界発信型商業施設
1階建物内奥G区画の募集です。
重飲食等業種相談
定期借家7年契約
開業販促費200,000円(税別)要
管理費
共益費
-
150,000円(税別)
保証金
解約引
-
-
敷金
礼金
6ヶ月
50万円(税別)
建物/専有
面積
20.55m2
(6.21坪)
土地面積 - 築年月 2023年2月
(令和5年2月)
駐車場 所在階 1階 地上階数
地下階数
3階
-
構造 鉄骨造
用途地域 近隣商業地域
現況 空き
入居/引渡 即時 
契約期間 7年
取引 仲介
物件登録日 2025年10月3日
情報更新日 2025年10月3日
「月間売上3,000,000円以下の場合」 300,000円/月
「月間売上3,000,001円以上の場合」 売上に対して10%の歩合家賃
固定の場合473,000円/月(税込)
火災保険・保証会社加入要
京都市伏見区 賃貸店舗一部 のことならお気軽にご相談ください。
レジェンドビルマネジメント
TEL:06-4950-4055
営業時間:10:00-18:30
定休日 :日曜・祝日
メールでのお問い合わせ

お電話の場合は「テナントショップを見ました。物件番号は < f10021-71484 > です」と伝えていただくとスムーズにお応えできます。

  • 借りる
  • テナント・貸店舗を探す
  • オフィス・事務所を探す
  • 倉庫・工場を探す
  • 貸土地・借地を探す
  • 居抜き物件
  • 地域で探す
  • 買う
  • 売買物件を探す
「居抜き」のまま閉店で閉店費用を大幅削減
非公開物件情報
一般公開物件
1,209
会員用非公開物件
91
  • ログイン
  • 新規登録
  • 依頼する
  • 新着物件!未公開物件!地元に詳しい!
  • 物件リクエスト
検索する
スペース区切りの複合語句検索はできません

  • スマホで物件検索
  • 実績紹介
  • 物件管理
  • 会社概要・アクセス
  • 採用情報
  • LBMブログ
  • コーポレートサイト