ようこそ ゲスト 様

京都市中京区 賃貸店舗一部

京都市中京区 賃貸店舗一部

お問い合わせ番号:f10021-71444
賃貸店舗一部
京都市中京区山崎町
阪急京都線 京都河原町駅 ( 徒歩 5分 )
賃料 100.00万円(税別)
(坪単価:5.55万円)
西木屋町通りに面す新築店舗
八角通りとの角地になります
飲食店可
京阪三条からも徒歩4分
2025年11月上旬引渡予定
管理費 -
保証金
解約引
-
-
敷金
礼金
-
4ヶ月(税別)
建物/専有
面積
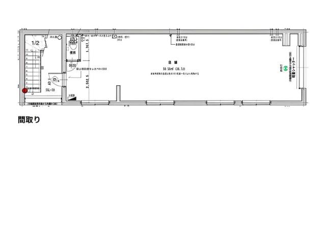
59.58m2
(18.02坪)
土地面積 - 築年月 2025年10月
(令和7年10月)
駐車場 所在階 1階 地上階数
地下階数
4階
-
構造 木造
現況 建築中
入居/引渡 相談 
取引 仲介
物件登録日 2025年9月30日
情報更新日 2025年10月3日
詳細はお問い合わせください
火災保険・保証会社加入要
京都市中京区 賃貸店舗一部 のことならお気軽にご相談ください。
レジェンドビルマネジメント
TEL:06-4950-4055
営業時間:10:00-18:30
定休日 :日曜・祝日
メールでのお問い合わせ

お電話の場合は「テナントショップを見ました。物件番号は < f10021-71444 > です」と伝えていただくとスムーズにお応えできます。

  • 借りる
  • テナント・貸店舗を探す
  • オフィス・事務所を探す
  • 倉庫・工場を探す
  • 貸土地・借地を探す
  • 居抜き物件
  • 地域で探す
  • 買う
  • 売買物件を探す
「居抜き」のまま閉店で閉店費用を大幅削減
非公開物件情報
一般公開物件
1,172
会員用非公開物件
94
  • ログイン
  • 新規登録
  • 依頼する
  • 新着物件!未公開物件!地元に詳しい!
  • 物件リクエスト
検索する
スペース区切りの複合語句検索はできません

  • スマホで物件検索
  • 実績紹介
  • 物件管理
  • 会社概要・アクセス
  • 採用情報
  • LBMブログ
  • コーポレートサイト