ようこそ ゲスト 様

京都市左京区 賃住店舗戸建

京都市左京区 賃住店舗戸建

お問い合わせ番号:f10021-71420
賃住店舗戸建
京都市左京区浄土寺南田町
京阪鴨東線 出町柳駅 ( 徒歩 30分 )
( バス 9分 銀閣寺道 バス停まで徒歩8分 )
賃料 30.00万円(税別)
(坪単価:0.42万円)
大文字山の麓、哲学の道まで徒歩60m
歴史を感じる京町屋の事業用物件です。
築年数は経過しておりますので、用途に合わせた改装が必要となりますが、
リノベーション次第で魅力的な空間へと生まれ変わります。
落ち着いた環境でカフェ・ギャラリー・事務所などに最適です。
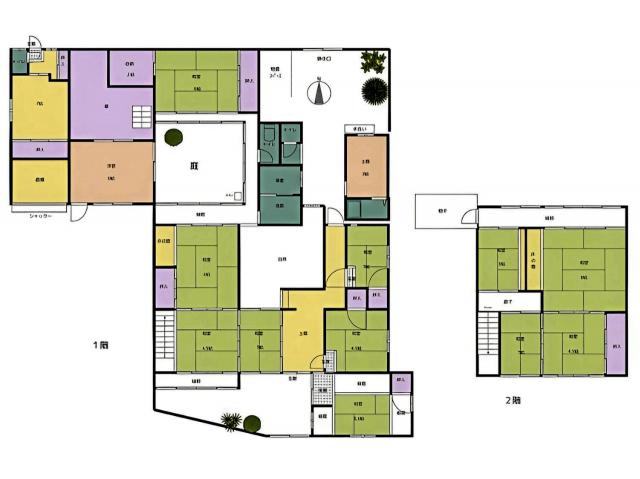
1階156.85㎡ 2階78.18㎡
バス停 銀閣寺通より徒歩8分
管理費 -
保証金
解約引
-
-
敷金
礼金
1ヶ月
2ヶ月(税別)
建物/専有
面積
235.03m2
(71.09坪)
土地面積 - 築年月 不詳
駐車場 所在階 1-2階 地上階数
地下階数
2階
-
構造 木造
用途地域 第一種低層住居専用地域
現況 空き
入居/引渡 即時 
契約期間 3年
取引 仲介
物件登録日 2025年9月26日
情報更新日 2025年12月11日
火災保険・保証会社加入要

京都市左京区 賃住店舗戸建 周辺地図

京都市左京区 賃住店舗戸建 のことならお気軽にご相談ください。
レジェンドビルマネジメント
TEL:06-4950-4055
営業時間:10:00-18:30
定休日 :日曜・祝日
メールでのお問い合わせ

お電話の場合は「テナントショップを見ました。物件番号は < f10021-71420 > です」と伝えていただくとスムーズにお応えできます。

  • 借りる
  • テナント・貸店舗を探す
  • オフィス・事務所を探す
  • 倉庫・工場を探す
  • 貸土地・借地を探す
  • 居抜き物件
  • 地域で探す
  • 買う
  • 売買物件を探す
「居抜き」のまま閉店で閉店費用を大幅削減
非公開物件情報
一般公開物件
1,158
会員用非公開物件
94
  • ログイン
  • 新規登録
  • 依頼する
  • 新着物件!未公開物件!地元に詳しい!
  • 物件リクエスト
検索する
スペース区切りの複合語句検索はできません

  • スマホで物件検索
  • 実績紹介
  • 物件管理
  • 会社概要・アクセス
  • 採用情報
  • LBMブログ
  • コーポレートサイト