ようこそ ゲスト 様

芦屋市 賃貸店舗・事務所

芦屋市 賃貸店舗・事務所

お問い合わせ番号:f10021-71175
賃貸店舗・事務所
芦屋市宮川町
阪神本線 打出駅 ( 徒歩 8分 )
賃料 41.44万円(税込)
(坪単価:0.66万円)
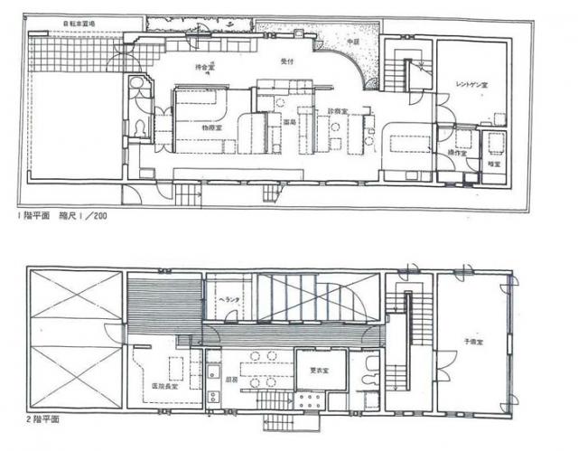
クリニック跡一棟貸し店舗事務所
1階 111.63㎡   2階 96.06㎡
駐車スペース有り
現状渡しとなります 既存設備に性能保証無し
業種要相談
賃料 414,480円(税込)
管理費 -
保証金
解約引
-
-
敷金
礼金
1ヶ月
3ヶ月(税込)
建物/専有
面積
207.69m2
(62.82坪)
土地面積 - 築年月 1986年9月
(昭和61年9月)
駐車場 所在階 1-2階 地上階数
地下階数
2階
-
構造 鉄筋コンクリート造(RC)
用途地域 第一種中高層住居専用地域
現況 空き
入居/引渡 相談 
取引 仲介
物件登録日 2025年8月22日
情報更新日 2025年12月13日
賃貸保証加入要

芦屋市 賃貸店舗・事務所 周辺地図

芦屋市 賃貸店舗・事務所 のことならお気軽にご相談ください。
レジェンドビルマネジメント
TEL:06-4950-4055
営業時間:10:00-18:30
定休日 :日曜・祝日
メールでのお問い合わせ

お電話の場合は「テナントショップを見ました。物件番号は < f10021-71175 > です」と伝えていただくとスムーズにお応えできます。

  • 借りる
  • テナント・貸店舗を探す
  • オフィス・事務所を探す
  • 倉庫・工場を探す
  • 貸土地・借地を探す
  • 居抜き物件
  • 地域で探す
  • 買う
  • 売買物件を探す
「居抜き」のまま閉店で閉店費用を大幅削減
非公開物件情報
一般公開物件
1,181
会員用非公開物件
93
  • ログイン
  • 新規登録
  • 依頼する
  • 新着物件!未公開物件!地元に詳しい!
  • 物件リクエスト
検索する
スペース区切りの複合語句検索はできません

  • スマホで物件検索
  • 実績紹介
  • 物件管理
  • 会社概要・アクセス
  • 採用情報
  • LBMブログ
  • コーポレートサイト